蔵の連なり
拡大表示

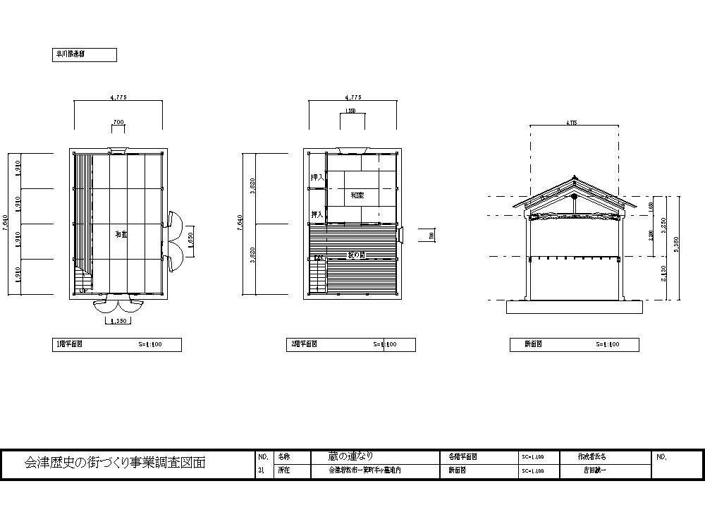
 ◆所在地/会津若松市
        一箕町牛ケ墓
 ■建築物等の概要
 ●所有者 早川悌雄・棚木庄次
            棚木明
 ●建築年 大正
 ●構 造 土蔵造
 ●階 数 1または2
 ●設 計 不明
 ●施 工 不明

●街なみ・建築物等の由来●

この地区は滝沢本陣につながる場所にあり、明治以降3度の火災にあった。滝沢本村は14戸あり、明治2年、24年、大正4年と大火に見まわれ、そのために防火と延焼をくいとめるために蔵がつくられたと言われている。また、火災の際には、扉のすき間にみそを塗って逃げたと言われている。蔵はみそ蔵として利用されている。

●街なみ・建築物等の特徴●

今回は3軒のみの調査であったが、滝沢街道の両脇には、会津若松市内での農家の蔵の連なりとしてはまれな存在である。また、外観は良好な状態で保たれているものが多く、滝沢本陣と飯盛山に近い場所にあることからも少なからず観光客の目にふれるものであり、新しい観光資源となる可能性も秘めている。

図面リスト
※拡大画像へリンク後は、ブラウザの「戻る」ボタンで戻ってください。
図面をクリックして下さい
1.平面図 2.立体図